ASTRALPOOL Einbauleiter SPLI LADDER (PARTENZA)
Design
Diese Leiter gehört zur Kategorie der geteilten Leitern und stellt nur das Unterteil dar. Die Einbauleiter SPLI LADDER besteht aus poliertem Edelstahl der Qualität V4AL in Hochglanzoptik. Sie verfügt über einen Holmdurchmesser von 43 mm. Sie kann beliebig mit Haltegriffen kombiniert werden.
Sicherheit
Mit der Wahl der Anzahl Stufen finden Sie die perfekte Leiter für Ihre Beckentiefe. Ausserdem sind die Stufen aus Edelstahl mit einer besonders rutschfesten Kunststoffauflage ausgestattet. Dies garantiert einen guten Halt sowohl beim Ein- als auch beim Ausstieg. Für den Einsatz im öffentlichen Bereich ist die erste Stufe als Sicherheitsstufe (doppelte Breite) optional erhältlich (separater Artikel).
Haltegriffe sind im Lieferumfang nicht enthalten und müssen zusätzlich bestellt werden.
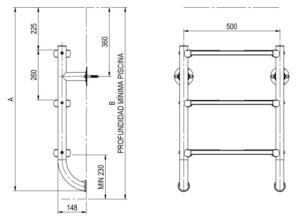
Bitte beachten Sie die untenstehende Masszeichnung und Tabelle, um die passende Einbauleiter zu finden:


Diese Leiter entspricht der Norm EN 16582-1:2015.











Bewertungen
Es gibt noch keine Bewertungen.