ASTRALPOOL Gegenstromanlage SET Advanced ND
TOP Modell der Gegenstromanlagen passend zu jedem Schwimmbad in neuem Design.
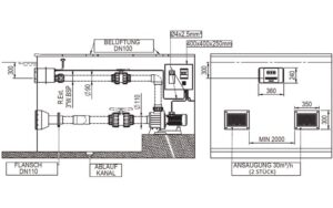
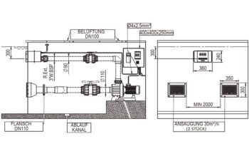
Die neu Designten seitlichen Lamellen bringen Innovationen, eine große Auswahl an Funktionen und Ebenen, Düsenstock mit polierter Edelstahlblende V4A. Luft-Wasser-Düse mit verstellbarem Durchfluss. Luft-Wasser-Rücklaufdüse, Durchfluss bis maximal 105 m³ / h bei 6mWs.
Die Ansaugung erfolgt über den Düsenstock. Inklusive Haltegriff, Edelstahleinbauteil V4A, 4,0 kW Pumpe und PN-Schaltkasten.
Die Innovation der Gegenstromanlagen mit Top Leistung. Düsenstock mit polierter Edelstahlblende V4A, beleuchtete piezoelektrische Taster, Luft-Wasser-Düse, Durchfluss verstellbar durch anpassen der Pumpengeschwindigkeit. Die Ansaugung erfolgt über zwei Ansauggitter, aus poliertem Edelstahl V4A, mit einer Kapazität von je 30 m³/h. Maximale Durchflussgeschwindigkeit 12 m/s am Auslass; 2,4 m/s in 1 m Entfernung; 1,7 m/s in 1,5 m Entfernung und 1,5 m/s in 2 m Entfernung. Inklusive Edelstahleinbauteil V4A, zwei Ansauggitter inklusive Betoneinbauteil (nur bei Ausführung für Folienbecken), 4,0 kW Pumpe (400 V), Schaltkasten und Steuerbox.


- Gegenstromschwimmanlage mit polierter Frontabdeckung aus Edelstahl AISI 316
- beleuchteter piezoelektrischer Druckknopf
- Sauggitter für 30 m³ / h aus poliertem AISI 316 Edelstahl (2 Stück)
- 4,0 kW Pumpe 3-Phasen ~ 400 V
- ink. Schaltschrank
- Luft-Wasser-Rücklaufdüse, Durchflussmenge von 25-50 m³ / h, einstellbar incl. eingebautem Absaugsystem
- maximale Durchflussraten von 12 m / s am Auslass der Einheit, 2,4 m / s in 1 m Entfernung, 1,7 m / s 1,5 m entfernt und 1,5 m / s 2 m entfernt

Lieferumfang:
- Edelstahleinbauteile
- Schaltkasten
- Pumpe











Bewertungen
Es gibt noch keine Bewertungen.